YAMAN PREFABRİK ÇELİK YAPI

Tüm dünyadaki mimari trendleri, yapı yönetmeliklerini ve müşteri fikirlerini dikkate alan firmamız prefabrik tek katlı konutlarda standart projeler oluşturduğu gibi müşteri odaklı çalışmasıyla isteğe bağlı projeler de hazırlamaktadır. Gerek bireysel olsun gerek toplu konut çalışması her binaya aynı özen ve hassasiyetle yaklaşan YAMAN PREFABRİK ÇELİK YAPI konut sektöründe adından söz ettiren bir firmadır. Prefabrik evlerde yaşam kalitenizi ve konforunuzu arttırmak için sürekli arge ve ürge çalışmalarımız devam etmektedir.


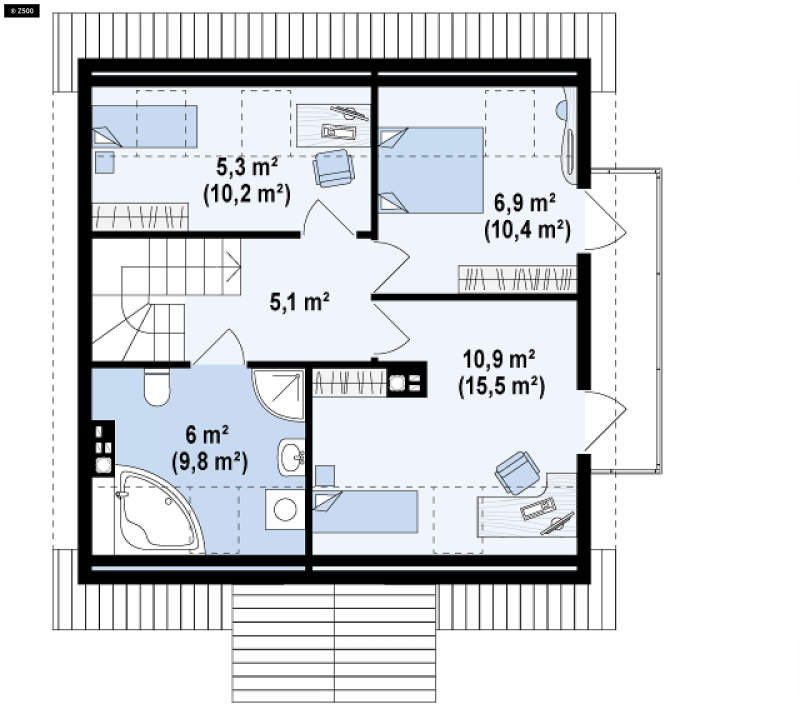
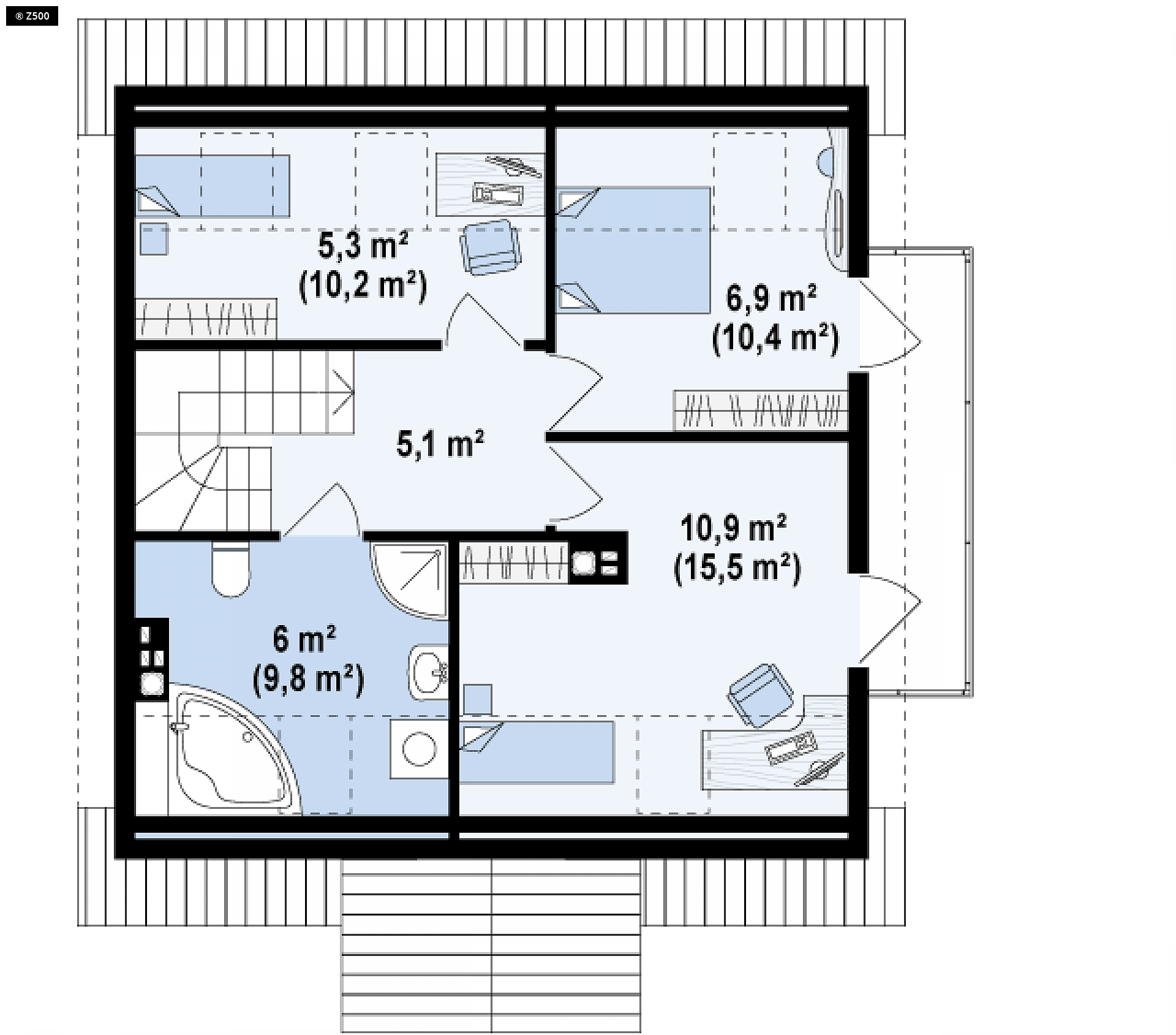
MODEL KODU : YP 804


METREKARE : 120 m²

Çelik Ev Modelleri İmalatcı Firma

MONTAJ GARANTİSİ

5 YIL

SERVİS GARANTİSİ

10 YIL

ÜCRETSİZ MONTAJ

DÜZCE İLİNDE

FİYAT TEKLİFİNİZİ
NASIL İSTERSİNİZ ?

DETAYLI BİLGİ

İçerik yükleniyor...

 60437c8d-3400-45fe-884c-2d7ce72638f6

ÜRÜN TEKNİK ÖZELLİKLERİ

SİSTEM TANIMI

Şartname inşaatı planlanan konutlarda su basman kotu üzeri üst yapının çelik taşıyıcılı yapı sistemlerine uygun olarak inşa edileceğini açıklamaktadır. Önerilen yapı sistemi ile fabrika ön üretimli hiç kaynak kullanılmadan yapılan çelik yapı elemanları inşaat mahallinde civatalama sistemi ile süratle bir araya getirilerek yapı karkası oluşturulmaktadır. Projelerde, yapılan Statik hesaba göre S220 (DIN EN 10326), S320 (DIN EN 10326), S350 (DIN EN 10326) (Ereğli Erdemir ve Çelik Fabrikaları T.A.Ş. Katalog Sfy 177) çeliklerinden uygun olanı kullanılmaktadır. Daha sonra yapılacak olan kaplamalar sayesinde iç ve dış duvarlarda bitmiş yüzeyler elde edilmesi yanı sıra, yüksek düzeyde ses ve ısı izolasyonu sağlanmaktadır.

Yapılarımızın statik hesaplarında ve mimari projelerinde ; SAP2000, AutoCAD, ACAD ve A Panel programları kullanılmaktadır.


1. TAŞIYICI SİSTEM

Panel Tipleri

Genişlik (mm)

H

Yükseklik

Tipi

Kalınlık

Kalite

Açıklama

FİYATA

DAHİL


DIŞ DUVARLAR

140

2800

Hafif Çelik

Konsiriksiyon

Projeye Göre

DX51+DZ

GALVANİZLİ

ÇİFT KATLI BİNALARDA


80

2800

Hafif Çelik

Konsiriksiyon

Projeye Göre

DX51+DZ

GALVANİZLİ

TEK KATLI

BİNALARDA


İÇ DUVARLAR


80


2800

Hafif Çelik

Konsiriksiyon


Projeye Göre


DX51+DZ

GALVANİZLİ

ÇİFT VE TEK KATLI BİNALARDA


ARAKAT DÖŞEMELERİ

80 / 90

400

Hafif Çelik

Konsiriksiyon

Projeye Göre

DX51+DZ

GALVANİZLİ

ÇİFT KATLI

BİNALARDA

TAVAN PANELLERİ


80


Hafif Çelik

Konsiriksiyon


Projeye Göre


DX51+DZ

GALVANİZLİ

ÇİFT VE TEK KATLI BİNALARDA


Makaslar


80


Hafif Çelik

Konsiriksiyon


Projeye Göre


DX51+DZ

GALVANİZLİ

ÇİFT VE TEK KATLI BİNALARDA


Çatı Panelleri


80


Hafif Çelik

Konsiriksiyon


Projeye Göre


DX51+DZ

GALVANİZLİ

ÇİFT VE TEK KATLI BİNALARDA


2. Duvar Kaplamaları


Panel Tipleri


Cephe Kaplaması

Kaplama

Altı

Konsiriksiyon

Arası

İzolasyon

İç Yüzey

Kaplama (Kuru Hacim)

İç Yüzey

Kaplama Islak Hacim)


Boya

FİYATA DAHİL

DIŞ DUVARLAR

Yalı Baskı Fibercement Ahşap Desenli Türk Siding

8 mm Fibercement

KNAUF

MİNERAL PLUS

Çift Kat Alçıpan

Levha 12 mm Beyaz

Çift Kat Alçıpan

Levha 12 mm

YEŞİL

Çift kat akrilik dış cephe boyası.


İÇ DUVARLAR



80 mm KNAUF

MİNERAL PLUS

Çift Kat Alçıpan

Levha 12 mm Beyaz

Çift Kat Alçıpan

Levha 12 mm Beyaz

Çift kat silikonlu İç

Cephe boya



3.TAVAN

Normal Mekan

12 mm Kalınlığında Alçıpan Levha -Beyaz

Islak Mekan

12 mm Kalınlığında Alçıpan Levha -Yeşil

İzolasyon

80 mm KNAUF Earthwool

Boya

Çift kat plastik boya


4.ÇATI

Kaplama

Metal Kiremit Ral3009

Kaplama Altına

Buhar Dengeleyi Nem Bariyeri

Kaplama Altına

11 mm OSB 2 EGER


Konsiriksiyon Arası İzolasyon

80 mm KNAUF Earthwool

Dereler

150 mm Ral9002 Boyalı Metal Kare yağmur dereleri

İnişler

Pvc Boru


5.KAPILAR

İç Kapılar

90 / 203 Ebatlarında MELAMİN KAPI

Dış Kapılar

900/2000 mm dış çerçeve ölçülü LÜX PANEL ÇELİK kapı

Islak Mekan Kapısı

90 / 203 Ebatlarında MELAMİN KAPI

Kapı Kilidi ve Kolu

konuttaki iç kapı kilitleri gömme kilitlerdir. kapı kolları altın ve ya gümüş renkli kapı kollarıdır.

6.PENCERLER

Pencere

60 mm. Profil genişliği - 3 Odacıklı 4+12+4 mm kalınlıkta ısıcamlı ( TSE ' li)

Renk

Beyaz

Pvc Vasistas

60 mm. Profil genişliği - 3 Odacıklı 4 mm Tek Camlı kalınlıkta ısıcamlı ( TSE ' li)

7.ZEMİN / DUVAR KAPLAMA

FAYANS

Genel Mahal Zeminlerinde

HARİÇTİR



ALICIYA AİT

Banyo / Wc Zeminlerinde

HARİÇTİR

ALICIYA AİT

Islak Hacim Duvarlarında

HARİÇTİR



ALICIYA AİT



8.ELEKTRİK TESİSATI

( SIVA ALTI)

Bina içi elektrik tesisatı ve

uygulamalar

Sigortalar ve Kaplolama İşleri

Bina içi elektrik

anahtarlar,pirizler


TSE Belgeli ( BİNA İÇİ AYDINLATMA GLOP ARMATÜRLERİ ALICIYA AİTTİR. )


Bina Ana dağıtım Panosu ve

topraklama hattı


HARİÇTİR

Kablolar

3x2,5 NYM

2X1,5 NYM

(TSE standartlarında)

Sigortalar, sigorta kutuları

W Otomat sigortaları TSE ONAYLIDIR. PVC Sigorta kutuları TSE ONAYLIDIR.

TV uydu kaplosu

HARİÇTİR

ALICIYA AİT

Klima Tesisatı

HARİÇTİR

ALICIYA AİT


9.SIHHİ VE MEKANİK TESİSAT

(SIVA ALTI )

Temiz Su Boruları

PPRC -TSE ONAYLIDIR.

Pis Su Boruları

PVC Boru (TSE standartlarında)

Isıtma ve soğutma Tesisatı

Montaj ve Malzeme Hariçtir.

ALICIYA AİT

Yangın Tesisaatı

Montaj ve Malzeme Hariçtir.

ALICIYA AİT

Lavabolar

DAHİLDİR.


Lavabolar ve Duş Muslukları


DAHİLDİR.

Klozet


DAHİLDİR.

Duş Teknesi

DAHİLDİR. ( TEKNE ÜZERİ KABİN HARİÇTİR. )


10.ARAKAT

(ÇİFT KATLI BİNALAR İÇİN )

Üst Kaplama

16 mm Kalınlığında Çimentolu Lifli Levha

Islak Hacimlere Şap

HARİÇTİR

ALICIYA AİT


Islak Hacimlere Su izolasyonu


HARİÇTİR

ALICIYA AİT

İzolasyon

80 mm KNAUF Earthwool

11.MERDİVEN

(ÇİFT KATLI BİNALAR İÇİN

Üst Kaplama

16 mm Kalınlığında Betopan

Korkuluk

Galvanizli Hafif Çelik yapı malzesinde özel olarak rolformda çekilmiş panellerin birleşmesinden oluşur

12.NAKLİYE-YÜKLEME- BOŞATMA-DEPOLAMA

Malzemenin Araca

Yüklenmesi


DAHİLDİR.

Nakliye ve Nakliye Sigortası

HARİÇTİR

ALICIYA AİT

13.MONTAJ

HARİÇTİR. ( FABRİKA TESLİMİDİR. )

ALICIYA AİT


DİĞER İŞLER


Her türlü hareketli mobilya (Mutfak Dolabı,tezgah,banyo dolabı,sabunluk,aynalık vb.)


HARİÇTİR


ALICIYA AİT

*SATICI' nın sorumluğundaki işler yukarıda teknik şatname'de sunulmuştur. SATICIN' nın açık olarak yüklendiği işler dışında tüm işler ALICI'ya aitir.

TAŞIYICI SİSTEM

Çelik Yapı sistemi Galvanizli bükme çelik 140mm ve 80mm C-kesitli çelik profillerin kullanımı ile en fazla 61cm arayla oluşturan dikmeler ve yatay kuşaklarla paneller oluşturulur. Benzer şekilde döşemeler de sonuçlarına göre 30/35cm yüksekliğinde, en fazla

61cm arayla yerleştirilen döşeme kirişlerinden oluşmaktadır. Kar ve ölü yükler baz alınarak hesaplanan makaslar en fazla 2m arayla yerleştirilerek döşemenin ikinci yönde de yük aktarması sağlanmaktadır. Kullanılan çelik malzemenin galvanizli olması korozyona karşı mukavemetini sağlamaktadır. Sistemin en önemli avantajı depreme karşı mukavemetin maksimum düzeyde sağlanmasıdır (Depreme karşı mukavemeti, panellerde kullanılan deprem çaprazları ile desteklenmektedir) Statik hesaplar zemin etüt sonuçları

değerlendirilerek 1. derece deprem bölgesi baz alınarak yapılmaktadır. Yapıların depreme karşı davranışı spektral analiz yöntemi kullanılarak incelenmiştir

PROFİL KESİT BİLGİLERİ

+ Konut İç ve Dış Boya İşlerinin Uygulanması
+ Konut İç ve Dış Kapıların Montajı
+ Konut Pencerelerin Montajı (Çift Cam PCV)
+ Sıva altı elektrik ve su tesisatının çekilmesi
+ Elektrik Armatürlerinin Montajı
+ Duş Teknesi, Klozet, Lavabo ve Bataryaların Paket Halinde Müşteriye Verilmesi
+ Konut Malzemelerinin İndirilmesi ve Montajı

- Zemin betonu ve her türlü harfiyat işleri.
- Zemin ve duvar kaplama işleri (şap, seramik, fayans, halı vs.)
- Binanın kurulması için gerekli resmi izinlerin alınması
- Bina ile zemin betonu arasındaki her türlü yalıtım işleri.
- Telefon, bilgisayar ve UPS tesisatları.
- Elektrik ana dağıtımı ve her türlü topraklama hattı.
- Elektrik ve Su Sayacı
- Bina harici dış bağlantılar.(Elektrik, Pissu ve Temiz su vs.)
- Isıtma ve soğutma tesisatları (Kalorifer, klima vs.)
- Mutfak alt üst dolapları ve banyo dolapları
- Nakliye ve nakliye sigortası müşteriye aittir.
- Düzce dışı montajlarda montaj ekibinin konaklama ve yemek ihtiyacı alıcıya aittir.

Bizi Sosyal Medyada Önerin